干式除尘
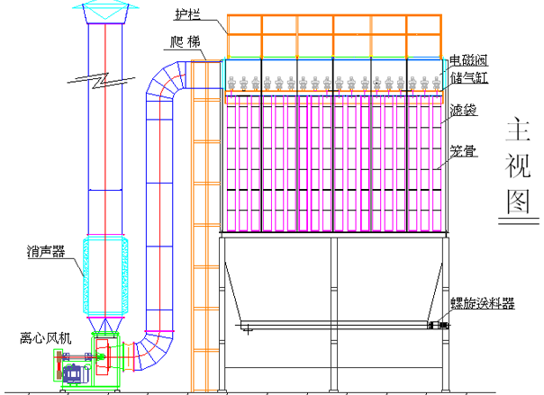
正常工作时,含尘气体由进风口进入灰斗,由于气体体积的急速膨胀,一部分较粗的尘粒受惯性或自然沉降等原因落入灰斗,其余大部分尘粒随气流上升进入袋室,经滤袋或滤筒过滤后,尘粒被滞留在滤袋或滤筒的外侧,净化后的气体由滤袋或滤筒内部进入上箱体,再由阀板孔、排风口排入大气,从而达到除尘的目的。含尘气体通过滤袋的净化过程,随着时间的增加而积附在滤袋或滤筒上的粉尘越来越多,增加了滤袋的阻力,致使通过滤袋或滤筒气体量逐渐减少。为使阻力控制在限定范围内,保证所需气体量通过由控制仪发出指令,按顺序触发各种控制阀开启脉冲阀,气包内的压缩空气瞬时地经脉冲阀至喷出管的各孔喷出,再经文氏管喷射到各对应的滤袋或滤筒内。滤袋或滤筒在气流瞬间反向作用下急剧膨胀,使积附在滤袋或滤筒表面的粉尘脱落,滤袋或滤筒得到再生。被清掉的粉尘落入灰斗,经排灰阀排出机体。积附在滤袋或滤筒上的粉尘被有周期性地脉冲喷吹清除,使净化的气体正常通过,保证除尘系统运行。
1.2工艺流程

1.3具体参数
|
型号 |
cc-5000 |
cc-10000 |
cc-15000 |
cc-20000 |
cc-30000 |
cc-40000 |
cc-50000 |
|
废气风量(m3/h) |
5000 |
10000 |
15000 |
20000 |
30000 |
40000 |
50000 |
|
装置功率(kw) |
7.5 |
11 |
22.5 |
30 |
45 |
56.25 |
75 |
|
烟囱尺寸(mm) |
400 |
550 |
750 |
850 |
950 |
1100 |
1200 |
|
设备尺寸(mm) |
1200×1200×4000 |
1600×1400×4500 |
2000×1500×5000 |
2500×1500×5500 |
3000×1500×5500 |
3200×1800×6000 |
3200×1800×6000 |
